V Trnave plánujú novú dominantu. V centre mesta má vyrásť vežiak, ktorý výrazne prevýši ostatné rezidenčné budovy v meste. Výstavbu plánuje developer United Real Estate rodiny Šebovcov, ktorá už vypísala súťaž na dizajn veže a jej okolia.
Projekt Spartakovská sa má stať súčasťou moderného centra mesta, kde doplní lokalitu s nákupným centrom City Aréna, mestským amfiteátrom, zimným štadiónom a štadiónom Antona Malatinského. S výškou osemdesiat metrov a 25 podlažiami prerastie nielen všetky okolité budovy, ale aj veže Baziliky sv. Mikuláša v historickom jadre, ktoré boli stáročia najvyššími stavbami v meste – ak nepočítame komín bývalého cukrovaru.
Hoci budova nespĺňa parametre mrakodrapu, teda výšku nad stopäťdesiat metrov, po jej dostavaní „Spartakovská veža“ jednoznačne zmení „skyline“ mesta. Bude tiež najvyššou rezidenčnou budovou na Slovensku mimo Bratislavy.
„Uvedomujeme si túto zodpovednosť a veľmi nám záleží na výsledku, preto sme oslovili osem renomovaných architektonických ateliérov zo Slovenska, aby v súťaži vytvorili urbanistické a architektonické návrhy projektu. Porota zložená z architektov a zo zástupcov mesta a firmy z nich potom vyberie ten najlepší,“ hovorí Karol Šebo, CEO spoločnosti United Real Estate, ktorá stojí za developerským projektom.
Firma na súťaž vyčlenila 220-tisíc eur, na súťaž bude dohliadať aj Slovenská komora architektov. Predsedom poroty, v ktorej bude mať developer menšinu, má byť architekt Ľubomír Závodný. Celkové náklady na výstavbu projektu sú podľa Šeba naplánované na 55 až šesťdesiat miliónov eur.
„V Trnave podnikáme dlhodobo a na kvalitnom výsledku nám preto veľmi záleží,“ zdôrazňuje Karol Šebo. United Real Estate patrí do skupiny United Industries podnikateľa Eduarda Šeba a jeho rodiny, Karol Šebo vedie developerskú vetvu skupiny.
United Industries/Cukrovar Trnava
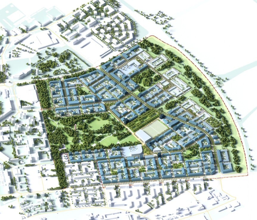
Projekt výstavby projektu Cukrovar sa rozdelil na viacero etáp. Foto: Archív United Industries/Cukrovar Trnava
Spoločnosť pod jeho vedením realizuje v Trnave aj projekt Cukrovar. Ide o 20-hektárový brownfield, ktorý chce developer zmeniť na novú mestskú štvrť a postupne tu buduje osem rezidenčných blokov s takmer dvetisíc bytmi. Projekt má zatiaľ za sebou dve skolaudované etapy a bezmála dvesto bytov, tretia sa aktuálne dokončuje a ďalšie dve sú vo výstavbe.
Výsledok verejnej súťaže
O trnavskom mrakodrape sa hovorí vážne od leta minulého roka, keď trnavskí poslanci schválili predaj pozemku na Spartakovskej ulici. Priestor, na ktorom v súčasnosti stojí predajňa obchodného reťazca Billa, získala spoločnosť United Real Estate ako jediný uchádzač verejnej súťaže. Mestu za pozemky zaplatila 7,1 milióna eur.
Robo Homola
Karol Šebo predpokladá začatie výstavby „Spartakovskej veže“ v roku 2029. Foto: Miro Homola
Nový projekt počíta s výstavbou približne 80-metrovej budovy s 25 podlažiami, v ktorej vznikne približne dvestoštyridsať bytov vo vysokom štandarde. „Okrem dominanty je možné na pozemku umiestniť ešte objekty so siedmimi poschodiami plus jedno ustúpené. Či tam napokon aj budú, či budú dve, či tri, aká bude plocha samotnej veže, či bude umiestnená do križovatky alebo ustúpená v úzadí, to všetko vyjde zo súťaže,“ hovorí Karol Šebo.
Developer chce súťaž ukončiť do júna tohto roka a výsledky vyhlásiť v júli.
Ľudia majú z výšky aj obavy
Projekt Spartakovská vyvolal aj negatívne reakcie domácich obyvateľov. Vyhlásenia na sociálnych sieťach ako „Trnava je pekná taká, aká je, svedčia jej nízke budovy“ alebo „určite nepotrebujeme ďalšiu zastavanú plochu a ešte 24-poschodovú, ktorá úplne zatieni sídlisko“ a ďalšie kritizovali najmä výšku budovy a vyjadrovali obavy z nedostatku zelene či parkovacích miest.
United Real Estate
Miesto, kde má vyrásť projekt Spartakovská. Foto: United Real Estate
„Územný plán mesta umožňuje už takmer dve desaťročia výstavbu výškovej dominanty práve v tejto lokalite, čo nás ako developerov prirodzene zaujalo,“ vysvetľuje Karol Šebo.
Krajské mesto doposiaľ rástlo prakticky len do šírky. Trnava nedávno spustila súťaž návrhov na rozvoj novej štvrte Trnava – Štvrť na východnom okraji mesta, ktorá doplní posledný chýbajúci výsek v jeho kruhovom pôdoryse. Aj táto štvrť má byť podľa predbežných podkladov bez výškových dominánt.
„Mesto má aj množstvo ďalších rozvojových lokalít, čiže ísť do výšky nie je nutnosť, ale výzva pre tých, čo chcú aj tvoriť a nielen počítať štvorcové metre,“ hovorí Karol Šebo.
Mesto Trnava
Mesto Trnava chce rozvíjať priestor na východnom okraji svojho kruhového pôdorysu. Foto: trnava.sk
Dopravné analýzy podľa Šeba potvrdili, že lokalita novú výstavbu a následné zahustenie premávky zvládne. Parkovacie miesta pri Bille síce zaniknú, no nahradí ich zhruba štyristo parkovacích miest, a to predovšetkým v podzemí „Spartakovskej veže“. Výstavbu parkovacieho domu v blízkosti plánuje aj mesto – na stavbu chce použiť práve financie z predaja pozemku.
Stavať chcú v roku 2029
Projekt podľa Šeba prinesie lokalite aj atraktívnejší verejný priestor. „Predpokladám, že pribudne zeleň, priestor na cvičenie alebo detské ihrisko. V rámci prízemia objektu chceme umiestniť aj občiansku vybavenosť, aj keď primárne je to rezidenčný projekt,“ dodal.
Kľúčovým prínosom pre mesto sú však podľa neho najmä nové byty, ktoré prilákajú do mesta ďalších obyvateľov, sedem miliónov eur v mestskom rozpočte za predaj pozemkov a napokon skrášlenie lokality. „Dnes je to územie s veľkým asfaltovým parkoviskom a krabicovým supermarketom, čo je koncept vhodný skôr na okraj mesta, nie do centrálnej lokality v susedstve štadiónu a historického centra. Verím, že prinesieme niečo oveľa lepšie,“ uzavrel Karol Šebo.
Developer plánuje stavať trnavský „mrakodrap“ od roku 2029 a postupovať v etapách. Presnejšie termíny upresní po ukončení architektonickej súťaže a povoľovacích procesov.